薪里ノ内戸建て 2期17号地

16.3万円

管理 / 共益費 -

京都府京田辺市薪里ノ内111-44

片町線「大住」駅徒歩18分

賃料
16.3万円
敷金(保証金)
30万円(-)
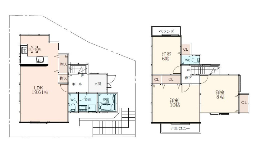
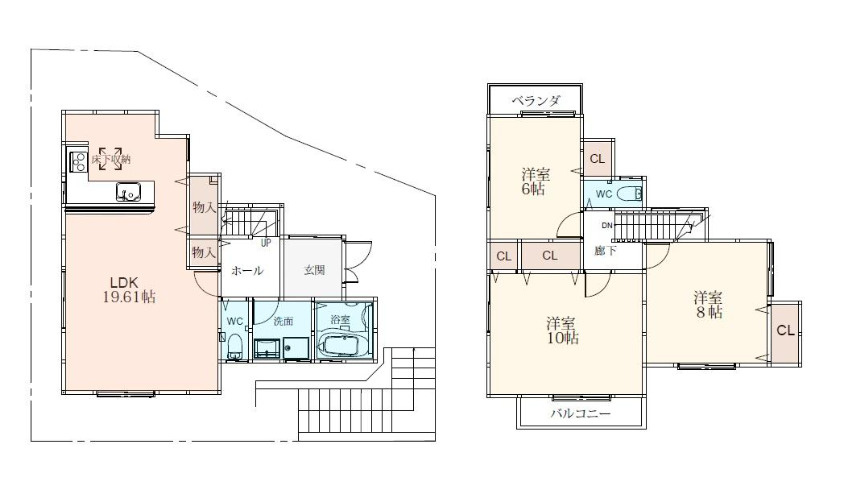
間取り
3LDK
向き
-
所在地
京都府京田辺市薪里ノ内111-44
管理 / 共益費
-
礼金
2ヶ月
建物面積
105.30㎡
築年月
2025年12月(予定)
交通

片町線大住」駅 徒歩18分

物件の特徴

  • バストイレ別

  • 室内洗濯機置場

  • TVモニタ付きインターホン

  • カウンターキッチン

  • 独立洗面台

  • 浴室乾燥機

セールスポイント

ペット相談可!礼金1ヶ月UP! ※小型犬・猫(10㎏未満)どちらか1匹!

ポイント

担当者のコメント

こころみ不動産株式会社  

室内設備はシステムキッチン・追い焚きなど大変充実しております。あると嬉しい設備として、ニーズが高いのが脱衣所です。新居の完成に合わせてお引越しをするというのはいかがでしょうか。風通しが良い一戸建てで快適な生活を。建物面積は105.3平米です。京田辺市の片町線大住近くで賃貸戸建てをお探しの方は、当社までご連絡ください。きっと素敵な住まいを見つけることができます。

基本情報

保証金
-
敷引 / 償却
- / -
敷金積み増し
-
間取り / 詳細
3LDK
向き
-
建物面積
105.30㎡
バルコニー
(テラス)面積
-
階建て
2階建
建物構造
木造
築年月
2025年12月(予定)
種別
一戸建て
保険会社 / 料金
有  / -
保証会社 / 料金
- / -
駐車場
有(1台) 0円
現況
未完成
入居可能時期
2026年02月下旬
その他条件
 24時間安心入居サポート加入要

設備条件

設備条件
  • ペット相談 / 陽当り良好 / デザイナーズ / 2人入居可 / 分譲タイプ / 眺望良好 / 学生歓迎 / 法人可 / SOHO向け / カップル向け / ファミリー向け / 仲介手数料無料 / 室内洗濯機置場 / フローリング / バルコニー / 都市ガス / 公営水道 / 公共下水 / 24時間換気システム / 電気有 / 駐輪場 / バイク置場あり / 駐車2台可 / ガスコンロ / システムキッチン / カウンターキッチン / バス・トイレ別 / 追焚機能浴室 / 浴室乾燥機 / 温水洗浄便座 / トイレ2ヶ所 / シャワー / 独立洗面台 / 床下収納 / TVモニタ付インターホン

その他

契約期間
2年
賃貸区分
一般
更新料
-
更新事務手数料
-
総戸数
-
特優賃
-
取引態様
一般媒介
物件番号
100381391
管理コード
-
情報更新日
2026年02月06日
次回更新予定日
2026年02月20日
取扱会社
  • こころみ不動産株式会社
  • 大阪府枚方市北中振3丁目17-36ー08号 
  • TEL:072-300-2424
  • 大阪府知事 (1) 第065265号
備考
知らない人が来た時でも玄関を開ける必要がなくなるモニター付きインターホンが付いております。室内設備は洗面化粧台・浴室乾燥機など大変充実しております。新築予定の物件のご紹介です。毎日浴槽に浸かるなら、追い焚き機能で水道代を節約しましょう。ここに戻ってくると、心と体が癒される。そんな環境があれば日々の生活も充実してくると思いませんか。これから一緒に素敵な住まいを探しましょう。

薪里ノ内戸建ての他の部屋

  1. 2期18号地

    3LDK (100.80㎡)

    15.5万円(0.51万円/坪)

  2. 2期18号地

    3LDK (100.80㎡)

    15.5万円(0.51万円/坪)

近隣の物件

  1. 薪堀切谷戸建て

    京田辺市薪堀切谷

    4LDK (115.92㎡)

    13.8万円

  2. サンロイヤル新田辺アカデミヤ1号館

    京田辺市草内鐘鉦割

    3LDK (61.87㎡)

    9.8万円

  3. 大住谷戸建

    京田辺市大住責谷

    6LDK (163.55㎡)

    15.2万円

薪里ノ内戸建て

薪里ノ内戸建て

16.3万円

-

3LDK(105.30㎡)

お気軽にお問い合わせください

LINEからお問い合わせ 無料お問い合わせ

こころみ不動産株式会社

072-300-2424

9時30分~19時00分

(休:水曜日・お盆・年末年始)