薪里ノ内戸建て 2期18号地

15.5万円

管理 / 共益費 -

京都府京田辺市薪里ノ内111-45

片町線「京田辺」駅徒歩19分

片町線「大住」駅徒歩18分

近鉄京都線「新田辺」駅徒歩30分

賃料
15.5万円
敷金(保証金)
30万円(-)
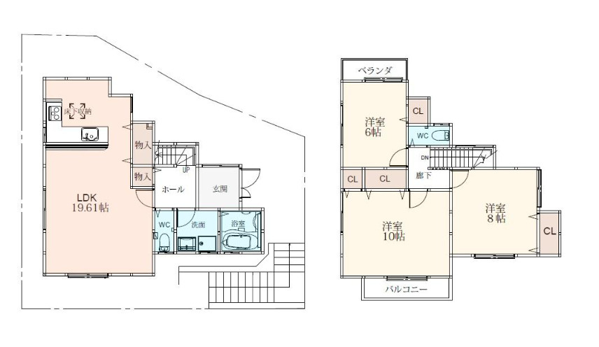
間取り
3LDK
向き
-
所在地
京都府京田辺市薪里ノ内111-45
管理 / 共益費
-
礼金
2ヶ月
建物面積
100.80㎡
築年月
2025年12月(予定)
交通

片町線京田辺」駅 徒歩19分

片町線大住」駅 徒歩18分

近鉄京都線新田辺」駅 徒歩30分

物件の特徴

  • バストイレ別

  • 室内洗濯機置場

  • TVモニタ付きインターホン

  • カウンターキッチン

  • 独立洗面台

  • 浴室乾燥機

セールスポイント

3LDK+BOXガレージ

ポイント

担当者のコメント

こころみ不動産株式会社  

玄関先まで覗き穴を覗きに行かなくてもインターホン越しに誰が来たのかを確認できるので防犯対策につながります。室内設備は洗面所独立・浴室乾燥機などが揃っており、とても充実しています。収納はクロゼット・床下収納など豊富なので、広々と空間を利用することも可能です。空気の入れ替えも簡単におこなえる通風良好の一戸建てです。敷地内に駐車場の空きがあるため、車を所有している方はご検討ください。新築の物件です。学生や友達同士で一緒に暮らせるお住まいです。青春を謳歌するならこちらの物件。自分に合った賃貸戸建てをお探しなら当社へお尋ね下さい。京田辺市エリアや片町線京田辺付近での賃貸戸建て探しをお手伝いします。

基本情報

保証金
-
敷引 / 償却
- / -
敷金積み増し
-
間取り / 詳細
3LDK
向き
-
建物面積
100.80㎡
バルコニー
(テラス)面積
-
階建て
2階建
建物構造
木造
築年月
2025年12月(予定)
種別
一戸建て
保険会社 / 料金
有  火災保険  / -
保証会社 / 料金
必加入 / 全保連
契約時月額総賃料50%、1年毎13000円、審査により変動
駐車場
有(2台)(屋根有) 0円
現況
未完成
入居可能時期
2026年02月下旬
その他条件
 24時間安心入居サポート加入要

設備条件

設備条件
  • ペット相談 / 陽当り良好 / デザイナーズ / 2人入居可 / 分譲タイプ / 眺望良好 / 学生歓迎 / 法人可 / SOHO向け / ルームシェア可 / カップル向け / ファミリー向け / 仲介手数料無料 / 室内洗濯機置場 / フローリング / 都市ガス / 公営水道 / 公共下水 / 24時間換気システム / 電気有 / ビルトガレージ / 駐輪場 / バイク置場あり / 駐車2台可 / システムキッチン / カウンターキッチン / バス・トイレ別 / 追焚機能浴室 / 浴室乾燥機 / 温水洗浄便座 / トイレ2ヶ所 / シャワー / 独立洗面台 / 床下収納 / TVモニタ付インターホン / 初期費用カード決済可

その他

契約期間
2年
賃貸区分
一般
更新料
-
更新事務手数料
-
総戸数
-
特優賃
-
取引態様
一般媒介
物件番号
100381392
管理コード
-
情報更新日
2026年02月06日
次回更新予定日
2026年02月20日
取扱会社
  • こころみ不動産株式会社
  • 大阪府枚方市北中振3丁目17-36ー08号 
  • TEL:072-300-2424
  • 大阪府知事 (1) 第065265号
備考
新生活を失敗せず、スタートさせたいならこちらの「薪里ノ内戸建て」はいかがでしょうか。室内設備は追い焚き・システムキッチンなどが揃っており、とても充実しています。この一戸建てではご相談次第でペットの飼育OKです。駐輪場付きの一戸建てです。住まい選びは人生においてとても重要な課題の一つです。あなたの明るい未来へと続く最良の住まい探しなら、是非当社にお任せ下さい。

薪里ノ内戸建ての他の部屋

  1. 2期17号地

    3LDK (105.30㎡)

    16.3万円(0.51万円/坪)

  2. 2期18号地

    3LDK (100.80㎡)

    15.5万円(0.51万円/坪)

近隣の物件

  1. 薪堀切谷戸建て

    京田辺市薪堀切谷

    4LDK (115.92㎡)

    13.8万円

  2. サンロイヤル新田辺アカデミヤ1号館

    京田辺市草内鐘鉦割

    3LDK (61.87㎡)

    9.8万円

  3. 大住谷戸建

    京田辺市大住責谷

    6LDK (163.55㎡)

    15.2万円

薪里ノ内戸建て

薪里ノ内戸建て

15.5万円

-

3LDK(100.80㎡)

お気軽にお問い合わせください

LINEからお問い合わせ 無料お問い合わせ

こころみ不動産株式会社

072-300-2424

9時30分~19時00分

(休:水曜日・お盆・年末年始)